CATÁLOGO:
Dale un vistazo a las casas contenedor de Mister Construcciones. Encuentra tu casa ideal en base a tus necesidades

Plano de Casa Contenedor de 60 m² con Dormitorios Separados y Living-Comedor
Este plano de casa contenedor de 60 m² prioriza la separación entre la zona social y las áreas de descanso: un amplio living-comedor central con cocina…
Tamaño: 60 m² Baños: 1 Habitaciones: 2
MÁS INFORMACIÓN
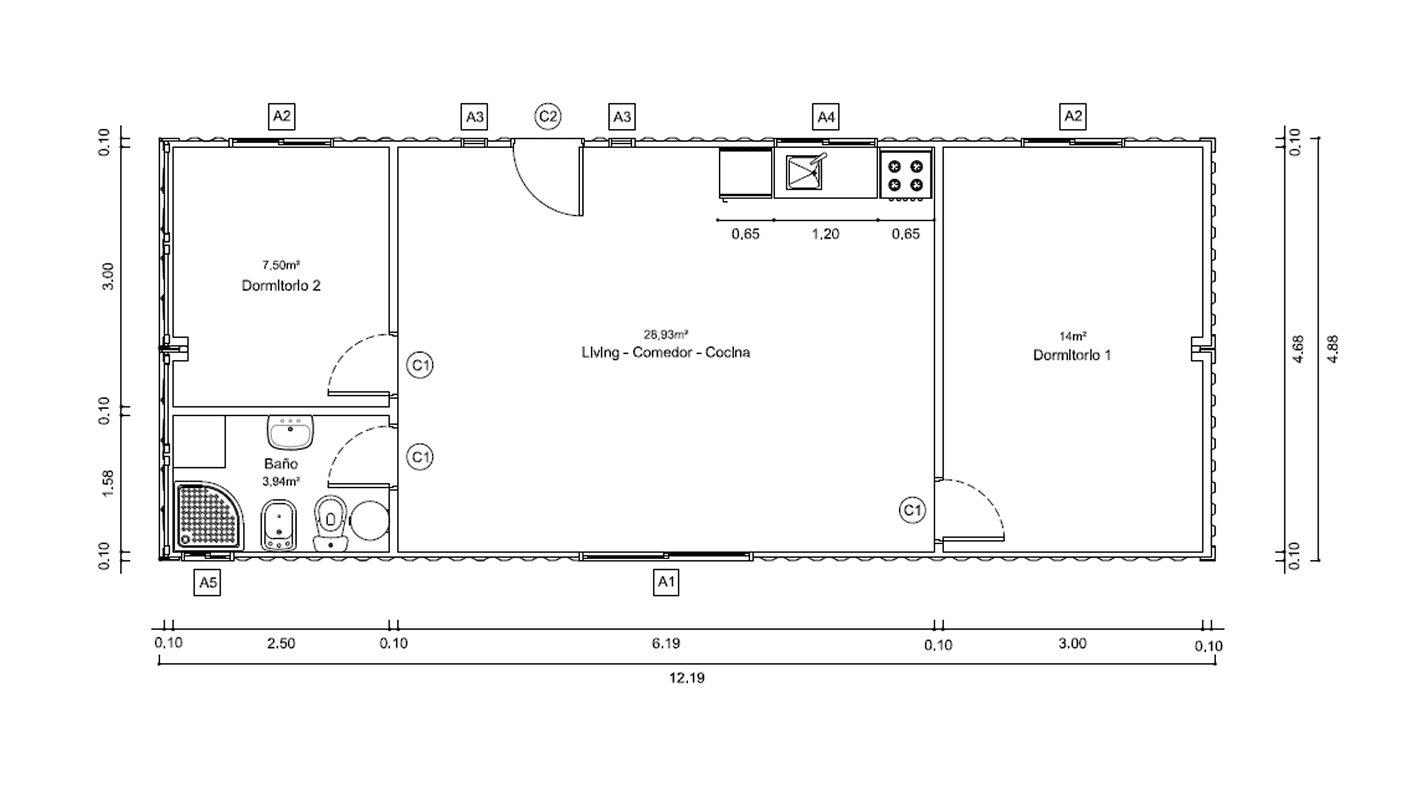
Plano de Casa Contenedor de 60 m² con 2 Dormitorios y Living-Comedor Amplio
Este plano de 60 m² se centra en un living-comedor amplio (≈28,9 m²) integrado con una cocina lineal (mesada ≈1,20 m) que optimiza la superficie útil.…
Tamaño: 60 m² Baños: 1 Habitaciones: 2
MÁS INFORMACIÓN
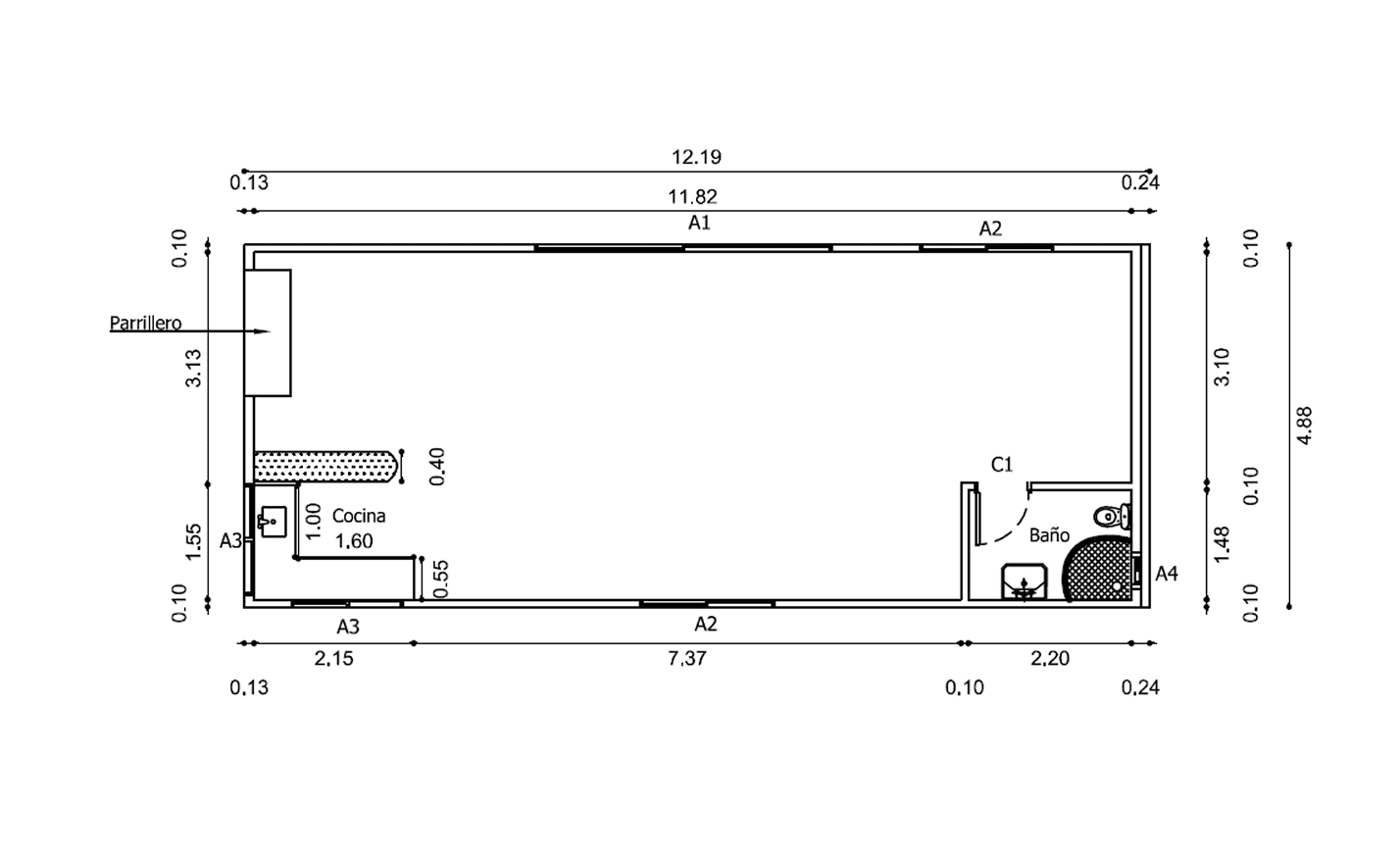
Plano de Casa Contenedor 60 m² — Espacio Social Amplio con Parrillero
Este plano de 60 m² destaca por su amplio espacio social abierto que integra living-comedor y cocina lineal (mesada ≈1,60 m), con un parrillero lateral y…
Tamaño: 60 m² Baños: 1 Habitaciones:
MÁS INFORMACIÓN
Plano de Casa Contenedor de 60 m² con 2 Dormitorios, Living-Comedor y 2 Baños
Este plano de casa contenedor de 60 m² organiza el programa alrededor de un amplio living-comedor integrado con cocina lineal y dos baños que dan servicio…
Tamaño: 60 m² Baños: 2 Habitaciones: 2
MÁS INFORMACIÓN
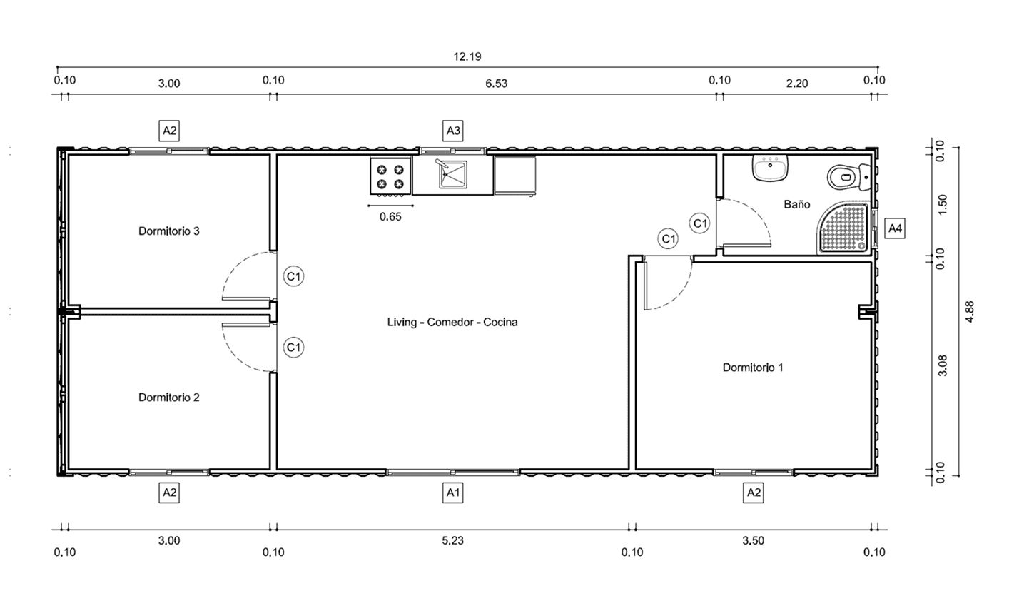
Plano de Casa Contenedor de 60 m² con 3 Dormitorios y Sala de Estar
Este plano de casa contenedor de 60 m² organiza la vivienda alrededor de una sala de estar amplia e integrada con la cocina, ofreciendo tres dormitorios…
Tamaño: 60 m² Baños: 1 Habitaciones: 3
MÁS INFORMACIÓN
Plano de Casa Contenedor de 60 m² con 3 Dormitorios y Zona Social Central
Este plano de casa contenedor de 60 m² organiza la vivienda alrededor de una zona social central amplia e integrada con la cocina, favoreciendo la luminosidad…
Tamaño: 60 m² Baños: 1 Habitaciones: 2
MÁS INFORMACIÓN
Plano de Casa Contenedor de 60 m² con 2 Dormitorios y Salón-Comedor
Este plano de casa contenedor de 60 m² ofrece un amplio salón-comedor integrado con una cocina lineal (mesada de 1,20 m), más dos dormitorios ubicados hacia…
Tamaño: 60 m² Baños: 1 Habitaciones: 2
MÁS INFORMACIÓN
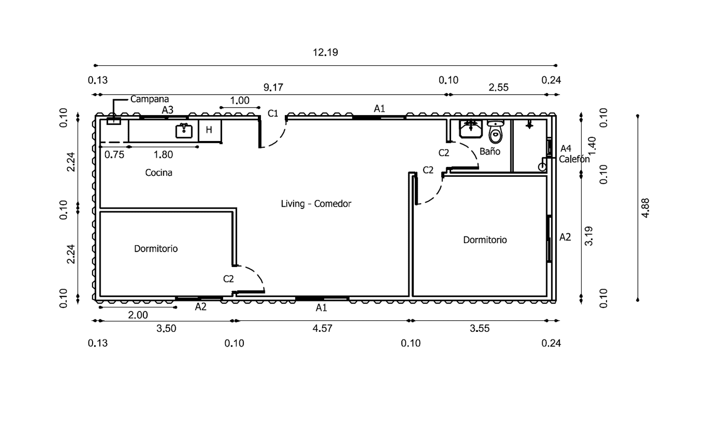
Plano de Casa Contenedor de 60 m² con Dormitorio Privado y Living-Comedor
Este plano de casa contenedor de 60 m² centra su distribución en un amplio living-comedor integrado con la cocina, además de un dormitorio privado y un…
Tamaño: 60 m² Baños: 1 Habitaciones: 2
MÁS INFORMACIÓN
Plano de Casa Contenedor de 60 m² con Dormitorio Privado y Living-Comedor
Este plano de casa contenedor de 60 m² centra su distribución en un amplio living-comedor integrado con la cocina, además de un dormitorio privado y un…
Tamaño: 60 m² Baños: 1 Habitaciones: 1
MÁS INFORMACIÓN