CATÁLOGO:
Dale un vistazo a las casas contenedor de Mister Construcciones. Encuentra tu casa ideal en base a tus necesidades

Casa contenedor — 30 m² Rústica moderna
Casa contenedor de 30 m² con 1 dormitorio y 1 baño, terminaciones interiores en terciado tratado que generan una atmósfera cálida. Cocina con mesón funcional y…
Tamaño: 30 m² Baños: 1 Habitaciones: 1
MÁS INFORMACIÓN
Casa contenedor 30 m² — modular compacta con 1 dormitorio
Casa contenedor 30 m² — vivienda terminada y lista para habitar. Un dormitorio, baño completo y cocina lineal equipada con mesada de madera y horno; living…
Tamaño: 30 m² Baños: 1 Habitaciones: 1
MÁS INFORMACIÓN
Casa contenedor 30 m² — Minimalista y luminosa
Casa contenedor de 30 m² con 1 dormitorio y baño completo. Planta integrada con cocina lineal, mesada de granito, suelos vinílicos claros y carpinterías. Ventanales corredizos…
Tamaño: 30 m² Baños: 1 Habitaciones: 1
MÁS INFORMACIÓN
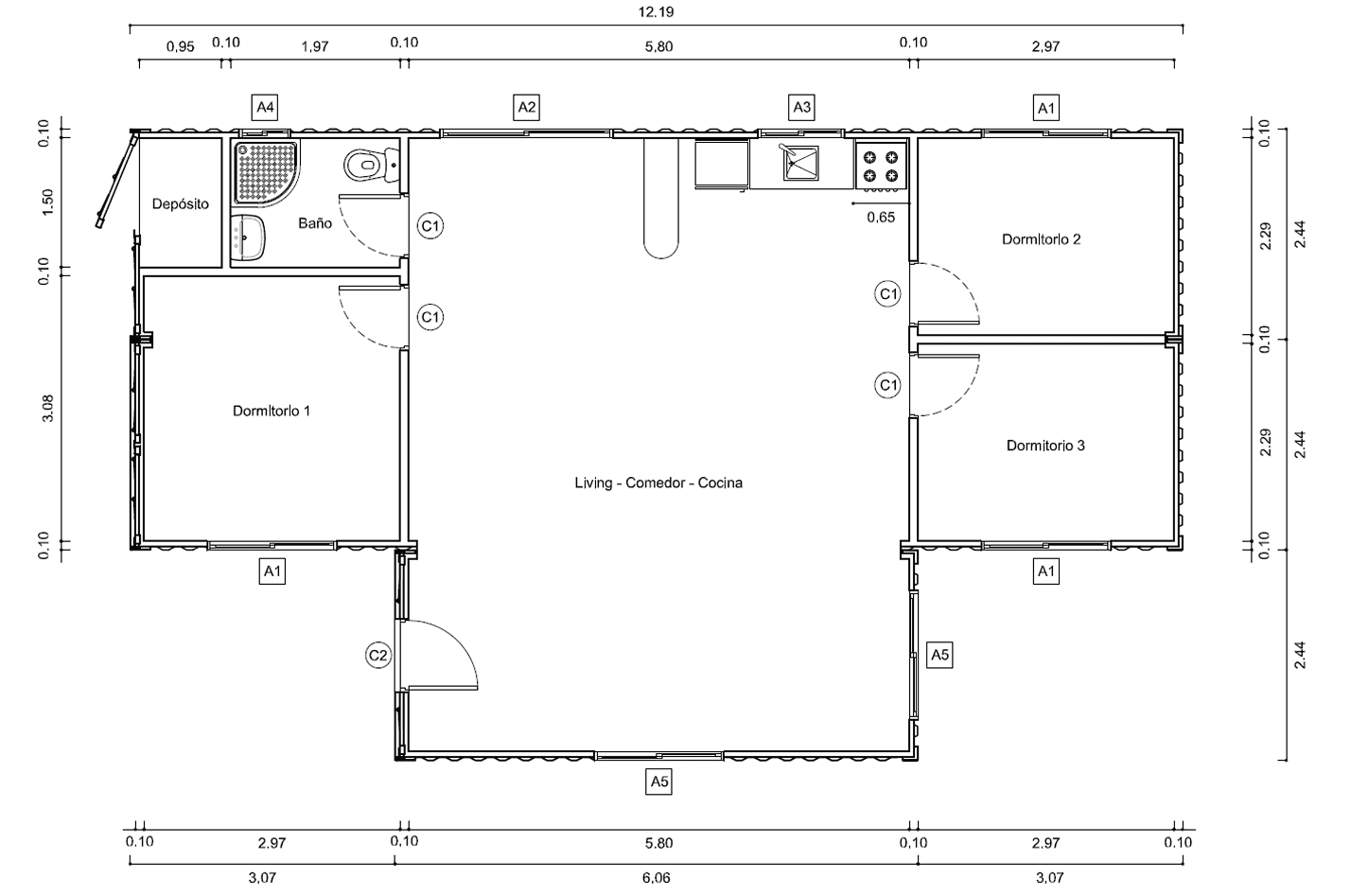
Plano de Casa Contenedor de 75 m² en T con 3 Dormitorios y Depósito
Plano de 75 m² con planta en T que organiza el espacio: el amplio salón-comedor-cocina integrado ocupa el eje central, mientras dos alas alojan los dormitorios…
Tamaño: 75 m² Baños: 1 Habitaciones: 3
MÁS INFORMACIÓN
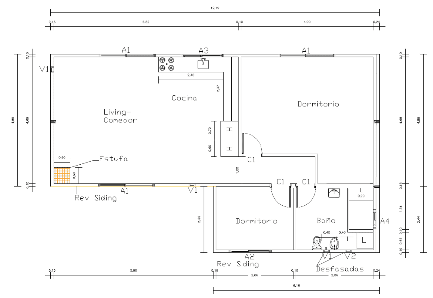
Plano de Casa Contenedor de 75 m² con Salón Amplio, 3 Dormitorios y Alero
Este plano de 75 m² organiza la vida social en un salón en L muy luminoso con cocina y barra, optimizando la circulación y la entrada…
Tamaño: 75 m² Baños: 1 Habitaciones: 3
MÁS INFORMACIÓN
Plano de Casa Contenedor de 75 m² con Salón Amplio y Planta en L
Este plano de 75 m² aprovecha una planta en L para crear un salón amplio y muy luminoso como núcleo social, con la cocina integrada y…
Tamaño: 75 m² Baños: 1 Habitaciones: 2
MÁS INFORMACIÓN
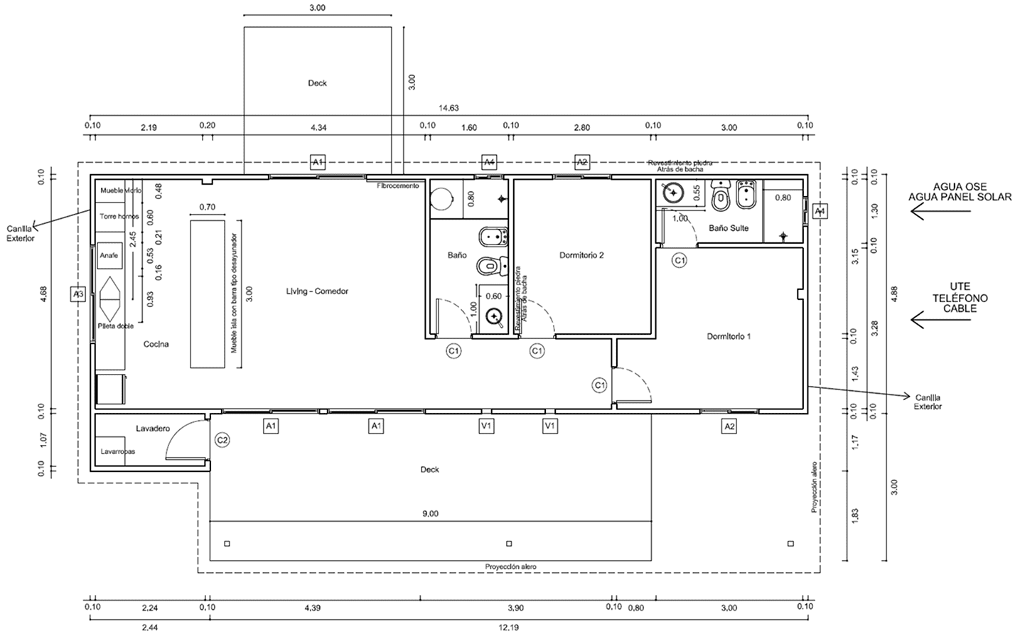
Plano de Casa Contenedor de 75 m² con 2 Dormitorios, Suite y Deck
Este plano de 75 m² destaca por un salón amplio con isla de cocina que concentra la vida social y se abre al deck exterior, creando…
Tamaño: 75 m² Baños: 2 Habitaciones: 2
MÁS INFORMACIÓN
Plano de Casa Contenedor 60 m² — Minimalista con Salón Amplio
Este plano de 60 m² apuesta por el minimalismo: un salón amplio como núcleo social que maximiza la percepción de espacio y la entrada de luz…
Tamaño: 60 m² Baños: 1 Habitaciones:
MÁS INFORMACIÓN
Plano de Casa Contenedor de 60 m² con 2 Dormitorios y Salón Central
Este plano de 60 m² sitúa un salón central como núcleo social, con cocina lineal (mesada ≈1,70 m) y dos dormitorios separados para mayor privacidad. El…
Tamaño: 60 m² Baños: 1 Habitaciones: 2
MÁS INFORMACIÓN