CATÁLOGO:
Dale un vistazo a las casas contenedor de Mister Construcciones. Encuentra tu casa ideal en base a tus necesidades

Plano de Contenedor de 15 m² de Espacio Abierto Multifuncional
Este plano muestra un contenedor de 15 m² completamente abierto, sin divisiones ni instalaciones, ideal para usos múltiples. Puede adaptarse como oficina móvil, depósito, estudio, espacio…
Tamaño: 15 m² Baños: Habitaciones:
MÁS INFORMACIÓN
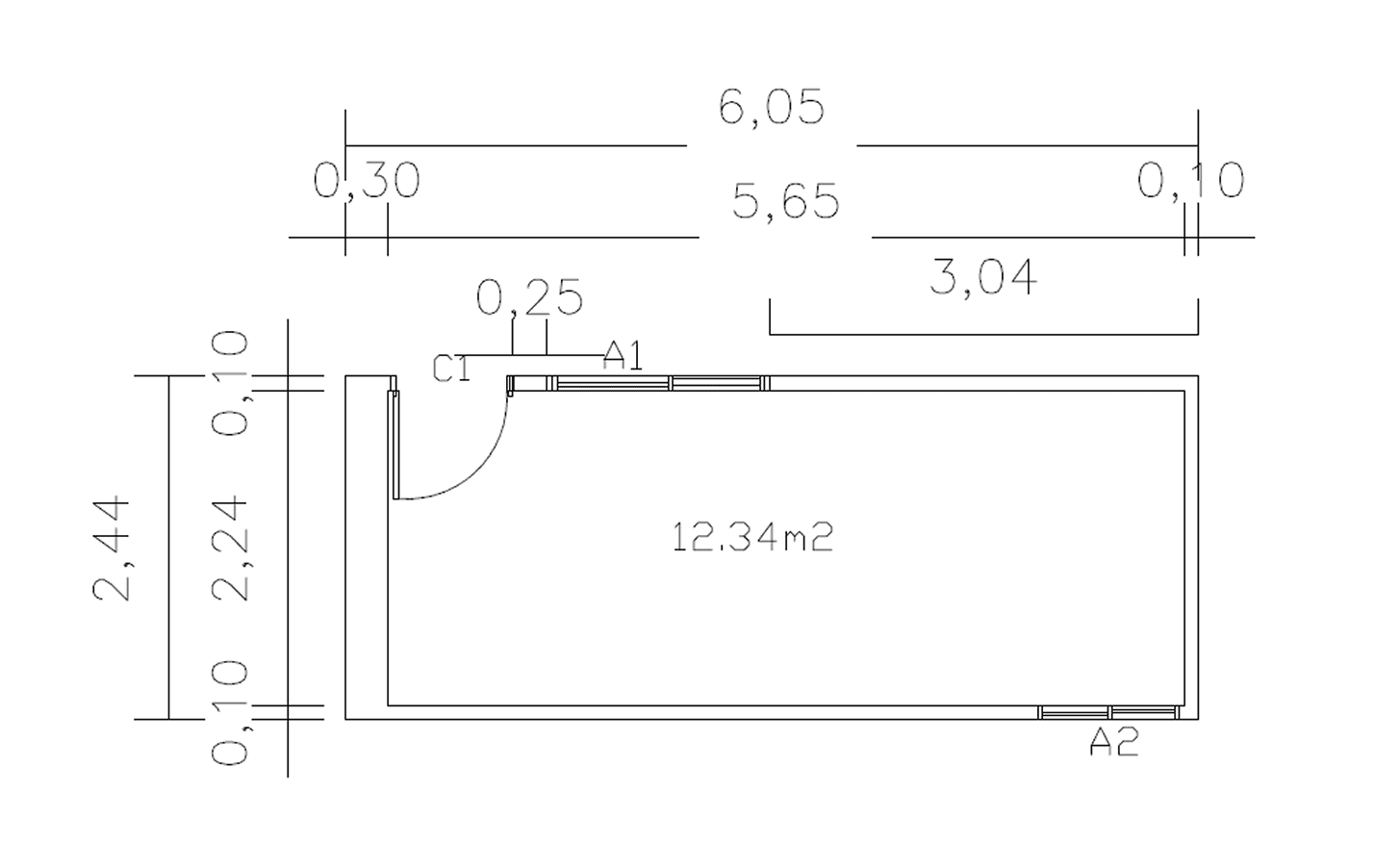
Plano de Casa Contenedor de 15 m² con Espacio Abierto y Baño
Este plano de casa contenedor de 15 m² tipo monoambiente combina funcionalidad y simplicidad en un solo espacio. Incluye un área abierta para cocina-comedor o uso…
Tamaño: 15 m² Baños: 1 Habitaciones:
MÁS INFORMACIÓN
Plano de Módulo Contenedor de 15 m² con 2 Baños Individuales
Este plano de módulo contenedor de 15 m² incluye dos baños individuales con lavamanos, inodoro, extractor y puertas independientes, todo en un solo contenedor. Es una…
Tamaño: 15 m² Baños: 2 Habitaciones:
MÁS INFORMACIÓN
Plano de Casa Contenedor de 15 m² con Distribución Lineal y Baño Separado
Este plano de casa contenedor de 15 m² presenta una distribución lineal inteligente, ideal para aprovechar al máximo un solo módulo. El diseño incluye un dormitorio…
Tamaño: 15 m² Baños: 1 Habitaciones: 1
MÁS INFORMACIÓN
Plano de Casa Contenedor de 15 m² con 1 Dormitorio y Cocina-Comedor Integrado
Este plano de casa contenedor de 15 m² propone un diseño compacto, funcional y económico. Con un dormitorio, baño completo y cocina-comedor integrados en un solo…
Tamaño: 15 m² Baños: 1 Habitaciones: 1
MÁS INFORMACIÓN
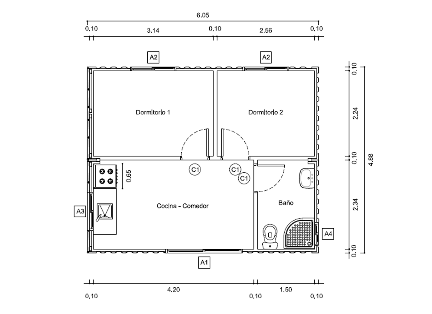
Plano de Casa Contenedor Compacta de 30 m² con 2 Dormitorios
Este plano de casa contenedor de 30 m² es la opción ideal para quienes buscan un diseño compacto, funcional y económico. Incluye 2 dormitorios, un baño…
Tamaño: 30 m² Baños: 1 Habitaciones: 2
MÁS INFORMACIÓN
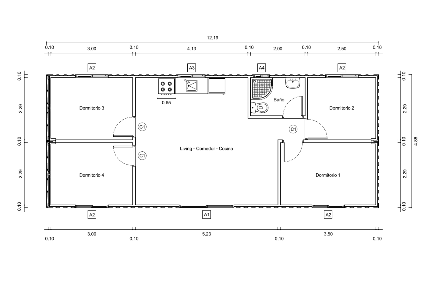
Plano de Casa Contenedor de 60 m² con 4 Dormitorios
Este plano de casa contenedor de 60 m² ofrece un diseño funcional y práctico, ideal para familias que buscan optimizar el espacio sin perder comodidad. Incluye…
Tamaño: 60 m² Baños: 1 Habitaciones: 4
MÁS INFORMACIÓN
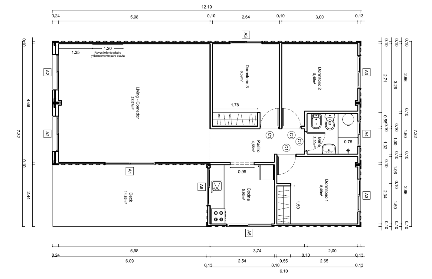
Plano de Casa Contenedor de 75 m² con 3 Dormitorios y Deck Frontal
Descubrí este plano de casa contenedor moderna de 75 metros cuadrados, ideal para familias, proyectos de renta vacacional o casas de campo. El diseño incluye 3…
Tamaño: 75 m² Baños: 1 Habitaciones: 3
MÁS INFORMACIÓN