CATÁLOGO:
Dale un vistazo a las casas contenedor de Mister Construcciones. Encuentra tu casa ideal en base a tus necesidades

Plano de Casa Contenedor de 30 m² con Dormitorio Privado y Sala de Estar
Este plano de casa contenedor de 30 m² ofrece una distribución práctica que separa la zona privada (dormitorio) de la zona social (sala de estar integrada…
Tamaño: 30 m² Baños: 1 Habitaciones: 1
MÁS INFORMACIÓN
Plano de Casa Contenedor de 30 m² con Dormitorio Privado y Cocina-Comedor
Este plano de casa contenedor de 30 m² presenta una distribución clara que separa la zona privada (dormitorio) de la zona social (cocina-comedor y living). Incluye…
Tamaño: 30 m² Baños: 1 Habitaciones: 1
MÁS INFORMACIÓN
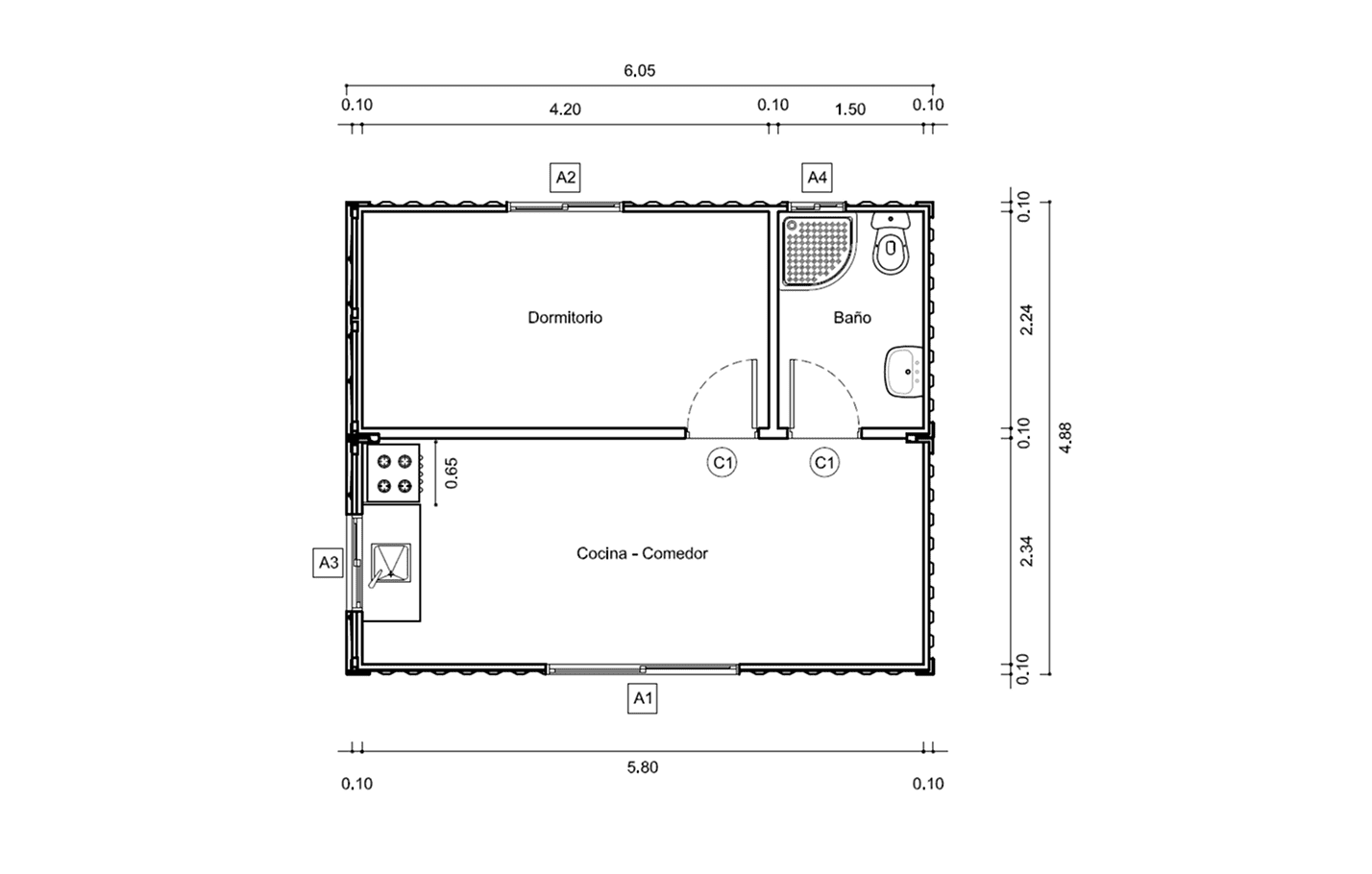
Plano de Casa Contenedor de 30 m² con Dormitorio Privado y Cocina-Comedor
Este plano de casa contenedor de 30 m² presenta una distribución eficiente que separa claramente la zona privada (dormitorio) de la zona social (cocina-comedor). Incluye dormitorio…
Tamaño: 30 m² Baños: 1 Habitaciones: 1
MÁS INFORMACIÓN
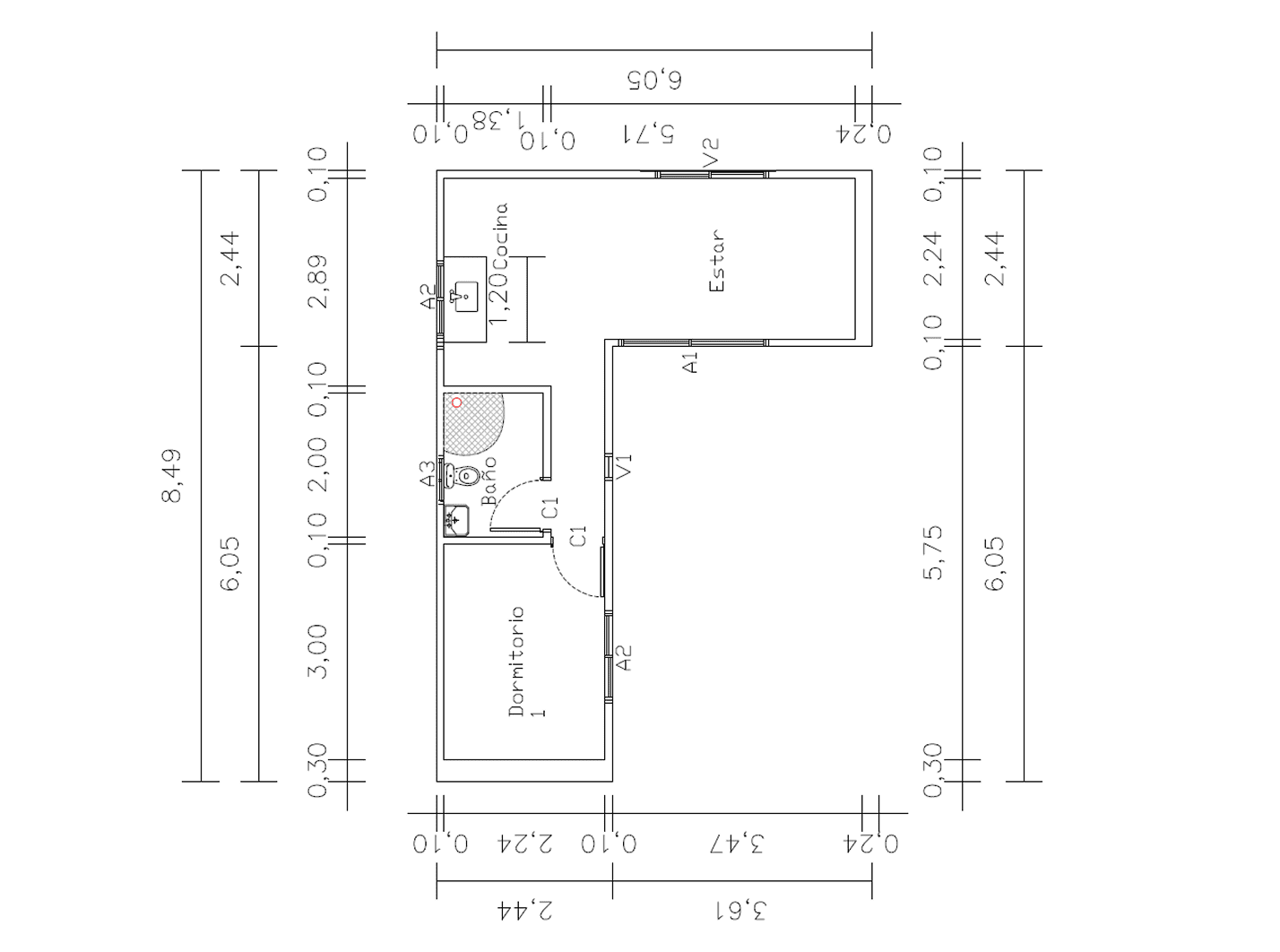
Plano de Casa Contenedor de 30 m² con Dormitorio Independiente y Living (Distribución en L)
Este plano de casa contenedor de 30 m² presenta una distribución en “L” que separa inteligentemente las zonas: dormitorio independiente, baño completo y un living integrado…
Tamaño: 30 m² Baños: 1 Habitaciones: 1
MÁS INFORMACIÓN
Plano de Contenedor de 15 m² con Entrada Lateral y Espacio Libre
Este plano de contenedor de 15 m² ofrece un espacio completamente abierto, con ingreso lateral, ideal para múltiples usos. Su diseño sin divisiones permite adaptarlo como…
Tamaño: 15 m² Baños: Habitaciones:
MÁS INFORMACIÓN
Plano de Contenedor de 15 m² con Lavamanos y Espacio Abierto
Este plano de contenedor de 15 m² ofrece un ambiente abierto con una mesada con lavamanos incluida, ideal para espacios que requieren funcionalidad básica con rápida…
Tamaño: 15 m² Baños: Habitaciones:
MÁS INFORMACIÓN
Plano de Contenedor de 15 m² con Baño y Espacio Versátil
Este plano de contenedor de 15 m² incluye un baño completo y un espacio abierto con mesada, ideal para múltiples usos. Puede adaptarse como vivienda mínima,…
Tamaño: 15 m² Baños: 1 Habitaciones:
MÁS INFORMACIÓN
Plano de Peluquería Contenedor de 15 m² con Baño y Área de Atención
Este plano muestra un diseño funcional de peluquería en contenedor de 15 m², equipado con baño, estantería, espejo, pileta de lavado y sillón de atención. Es…
Tamaño: 15 m² Baños: 1 Habitaciones:
MÁS INFORMACIÓN
Plano de Oficina Contenedor de 15 m² con Baño Integrado
Este plano muestra una oficina contenedor de 15 m² equipada con un baño completo y espacio de trabajo abierto. Es una solución ideal para proyectos que…
Tamaño: 15 m² Baños: 1 Habitaciones:
MÁS INFORMACIÓN