CATÁLOGO:
Dale un vistazo a las casas contenedor de Mister Construcciones. Encuentra tu casa ideal en base a tus necesidades

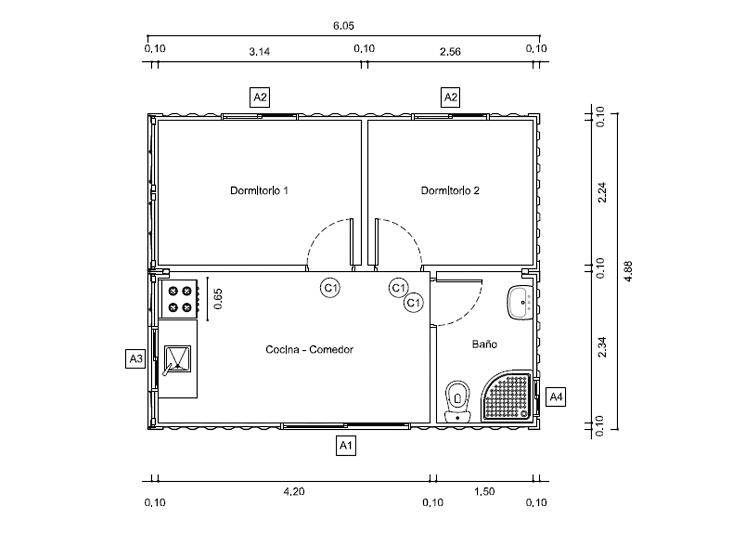
Plano de Casa Contenedor de 45 m² con 2 Dormitorios y Zona de Estar
Este plano de casa contenedor de 45 m² ofrece una zona de estar integrada con cocina y dos dormitorios privados conectados por un pequeño hall. El…
Tamaño: 45 m² Baños: 1 Habitaciones: 2
MÁS INFORMACIÓN
Plano de Casa Contenedor de 45 m² con 2 Dormitorios y Sala de Estar (Distribución en L)
Este plano de casa contenedor de 45 m² presenta una distribución en L que separa claramente las zonas: una amplia sala de estar integrada con cocina…
Tamaño: 45 m² Baños: 1 Habitaciones: 2
MÁS INFORMACIÓN
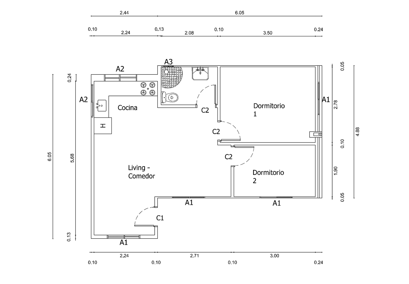
Plano de Casa Contenedor de 45 m² con 2 Dormitorios y Living-Comedor
Este plano de casa contenedor de 45 m² presenta un amplio living-comedor integrado con la cocina, dos dormitorios privados y un baño completo. La disposición separa…
Tamaño: 45 m² Baños: 1 Habitaciones: 2
MÁS INFORMACIÓN
Plano de Casa Contenedor de 45 m² con 2 Dormitorios y Salón-Comedor
Este plano de casa contenedor de 45 m² presenta un salón-comedor central con cocina integrada, dos dormitorios independientes y un baño completo. La distribución permite separar…
Tamaño: 45 m² Baños: 1 Habitaciones: 2
MÁS INFORMACIÓN
Plano de Casa Contenedor de 45 m² con 2 Dormitorios y Área Social
Este plano de casa contenedor de 45 m² ofrece una distribución práctica que separa la zona privada (dos dormitorios) de la área social central. La cocina…
Tamaño: 45 m² Baños: 1 Habitaciones: 2
MÁS INFORMACIÓN
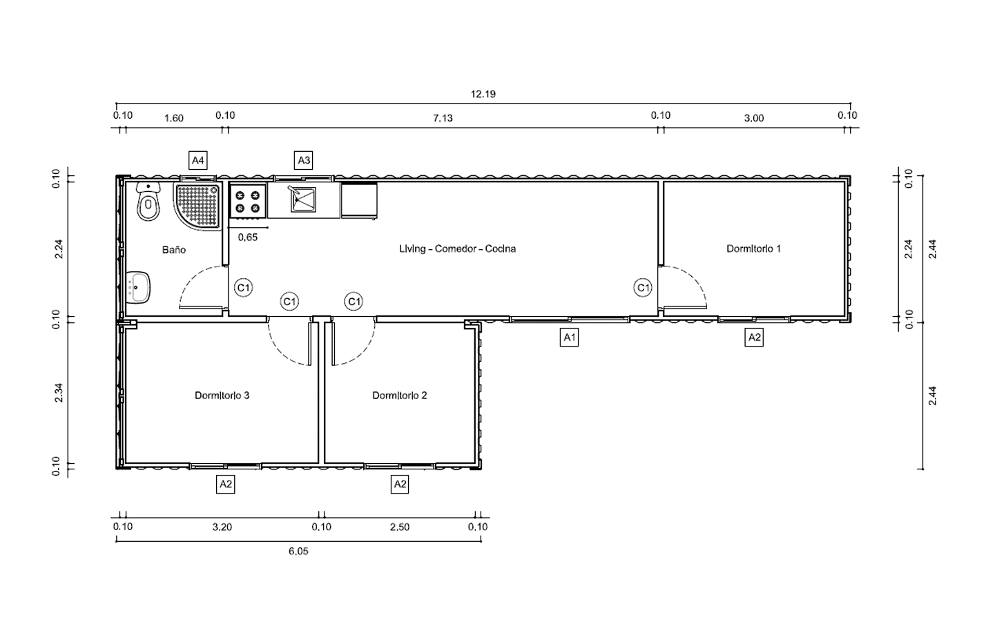
Plano de Casa Contenedor de 45 m² con 3 Dormitorios y Zona Social
Plano de casa contenedor de 45 m² con configuración en “T”: una amplia zona social central (living-comedor con cocina integrada) y tres dormitorios independientes distribuidos en…
Tamaño: 45 m² Baños: 1 Habitaciones: 3
MÁS INFORMACIÓN
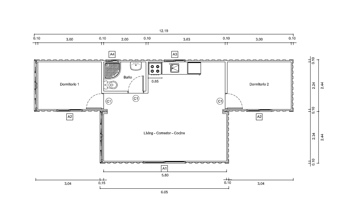
Plano de Casa Contenedor de 45 m² con 2 Dormitorios y Salón-Comedor
Este plano de casa contenedor de 45 m² presenta una distribución en “T” que maximiza la privacidad y la funcionalidad: dos dormitorios independientes, un baño completo…
Tamaño: 45 m² Baños: 1 Habitaciones: 2
MÁS INFORMACIÓN
Plano de Casa Contenedor de 45 m² con 2 Dormitorios y Living-Comedor en L
Este plano de casa contenedor de 45 m² presenta una distribución en L que diferencia claramente la zona social del área privada. Cuenta con un amplio…
Tamaño: 45 m² Baños: 1 Habitaciones: 1
MÁS INFORMACIÓN
Plano de Casa Contenedor de 30 m² con 2 Dormitorios y Comedor Integrado
Este plano de casa contenedor de 30 m² está pensado para ofrecer confort en un formato compacto: incluye dos dormitorios privados, un baño completo y una…
Tamaño: 2 m² Baños: 1 Habitaciones: 2
MÁS INFORMACIÓN